7
Otway Street, Gillingham, ME7
Under Offer
£190,000
2 bedrooms, 1 bathrooms, 1 receptions
Summary:
Two Bedroom Mid Terrace Property * chain free * first time buyer *
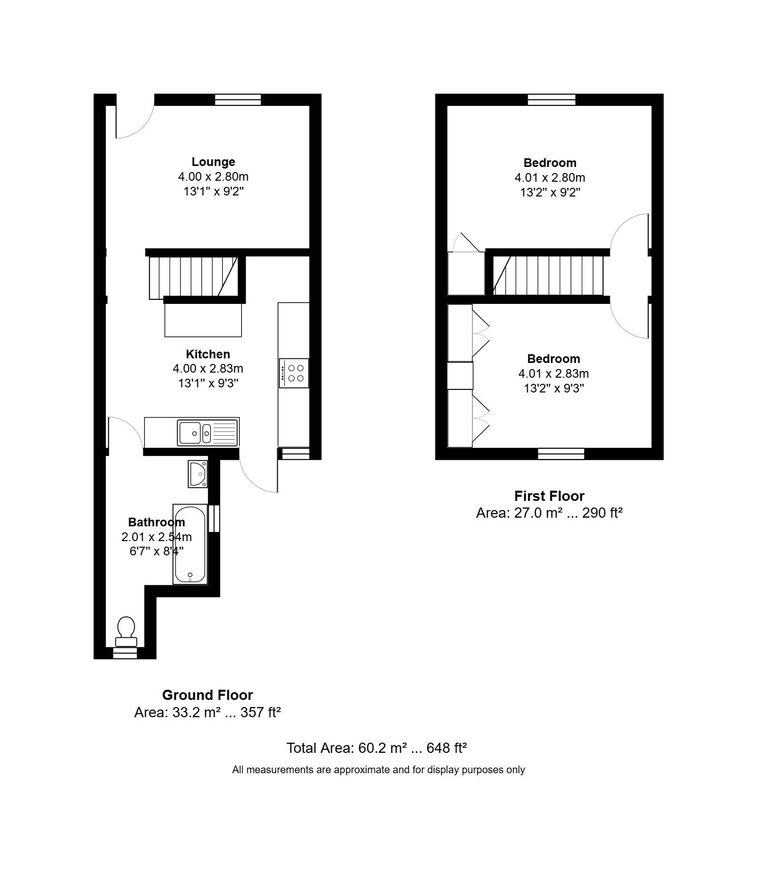
Full Details:
Perry and Partners are pleased to offer this two bedroom, mid terrace property in a quiet residential area of Gillingham, close to local amenities and Mainline Railway Station. An Ideal investment opportunity, in need of refurbishment or for a first time buyer to convert into a lovely family home. EPC Rating 61 (D) Council Tax - Band B
Lounge: 13’ x 9’03” - White UPVC front door, UPVC double glazed window, radiator.
Kitchen: 13’03” x 9’ - Fitted kitchen with gas hob, integrated electric oven & grill, radiator, meter cupboard, UPVC double glazed window, UPVC double glazed back door to garden.
Ground Floor Bathroom: 8’03” x 6’07” – Wash hand basin, bath with shower attachment, WC, radiator, two UPVC double glazed windows.
Bedroom One (front): 13’1” x 9’03” – UPVC double glazed window, radiator, built in storage cupboard.
Bedroom Two (rear): 11’03” x 9’03” - UPVC double glazed window, radiator, two built in storage cupboards.
Garden: Approximately 52ft rear garden laid to lawn with two patio areas.
Viewing & Disclaimer:
Please contact us on 01634 850 075 if you wish to arrange a viewing appointment for this property, or require further information.
Energy Performance Certificate
Click here to view the Energy Efficiency Rating and Environmental Impact Rating for this property.
Perry & Partners endeavour to maintain accurate depictions of properties in Virtual Tours, Floor Plans and descriptions, however, these are intended only as a guide and purchasers must satisfy themselves by personal inspection.
