10
Albany Road, Gillingham, ME7
SSTC
Fixed price £200,000
3 bedrooms, 1 bathrooms, - receptions
Summary:
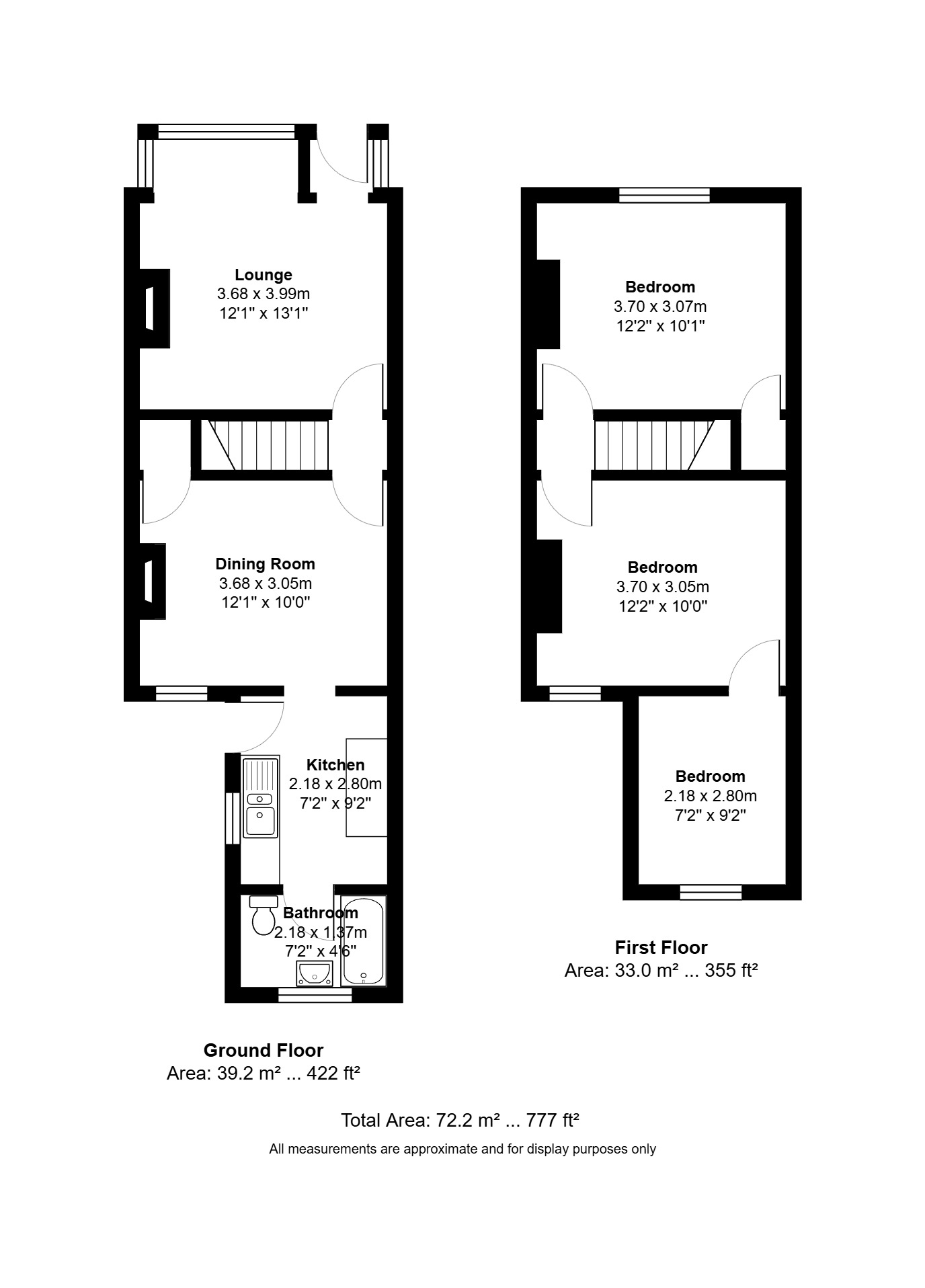
In need of refurbishment, this chain free three bedroom mid terrace property in a sought after area of Gillingham is an ideal project for investors and first time buyers. The property has two reception rooms, kitchen, bathroom, two double bedrooms, a third single bedroom off of the second and a rear garden. Close to local schools and main line train station with high speeds links to London. EPC Rating 55 (D) Council Tax Band B Lounge: 10'10" x 13'02" - UPVC double glazed window, radiator. Dining room: 10'08" x 9'11" to recess - UPVC double glazed, radiator, door leading to under stairs cupboard housing meters. Kitchen: 7' 01" x 9'01" - UPVC double glazed window, range of fitted units, double glazed door to garden, boiler. Bathroom: 7'02" x 4'06" - UPVC double glazed window, radiator, bath, basin & WC Bedroom One: 10' x 12'03" to recess - UPVC double glazed window, radiator, built in storage cupboard. Bedroom Two: 10' x 12" to recess - UPVC double glazed window, radiator, built in storage cupboard. Bedroom Three: 7'01" x 9'02" UPVC double glazed window Garden: Approx. 130 ft rear garden with brick built storage shed
Key Features:
- Private garden
- On street/residents parking
- Central heating
- Double glazing
Full Details:
In need of refurbishment, this chain free three bedroom mid terrace property in a sought after area of Gillingham is an ideal project for investors and first time buyers.
The property has two reception rooms, kitchen, bathroom, two double bedrooms, a third single bedroom off of the second and a rear garden.
Close to local schools and main line train station with high speeds links to London. EPC Rating 55 (D) Council Tax Band B
Lounge: 10'10" x 13'02" - UPVC double glazed window, radiator.
Dining room: 10'08" x 9'11" to recess - UPVC double glazed, radiator, door leading to under stairs cupboard housing meters.
Kitchen: 7' 01" x 9'01" - UPVC double glazed window, range of fitted units, double glazed door to garden, boiler.
Bathroom: 7'02" x 4'06" - UPVC double glazed window, radiator, bath, basin & WC
Bedroom One: 10' x 12'03" to recess - UPVC double glazed window, radiator, built in storage cupboard.
Bedroom Two: 10' x 12" to recess - UPVC double glazed window, radiator, built in storage cupboard.
Bedroom Three: 7'01" x 9'02" UPVC double glazed window
Garden: Approx. 130 ft rear garden with brick built storage shed
Viewing & Disclaimer:
Please contact us on 01634 850 075 if you wish to arrange a viewing appointment for this property, or require further information.
Energy Performance Certificate
Click here to view the Energy Efficiency Rating and Environmental Impact Rating for this property.
Perry & Partners endeavour to maintain accurate depictions of properties in Virtual Tours, Floor Plans and descriptions, however, these are intended only as a guide and purchasers must satisfy themselves by personal inspection.
